Обяви За нас Контакти
Продава 2-СТАЕН
град Пловдив, Остромила
126 100 €
246 630.16 лв.

(1 854 €, 3 626.11 лв./m2)
Цената е с включено ДДС
Коригирана в 15:14 на 7 януари, 2026 год.
Обявата е посетена 581 пъти.
Площ:
68 m2
Етаж:
3-ти от 4
Строителство:
Тухла, Ще бъде въведен в експлоатация 2026 г.

Описание на имота:


ДВУСТАЕН АПАРТМЕНТ С ВЪЗМОЖНОСТ ЗА ПАРКОМЯСТО !!! ПРЕД АКТ 16!!! ОСТРОМИЛА!!!

Представяме на Вашето внимание двустаен апартамент в кв.Остромила.

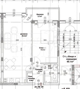
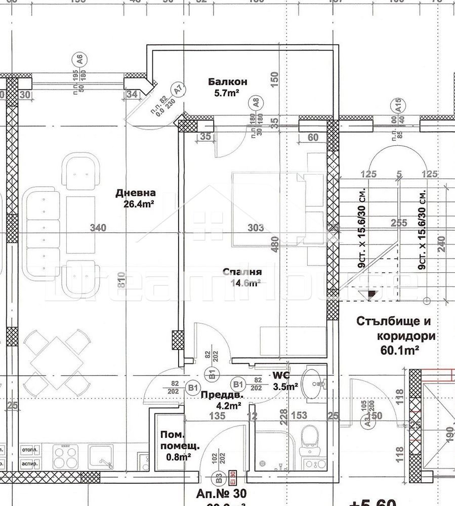
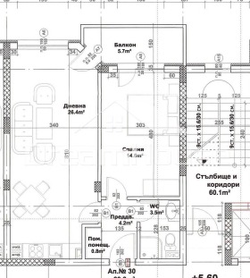
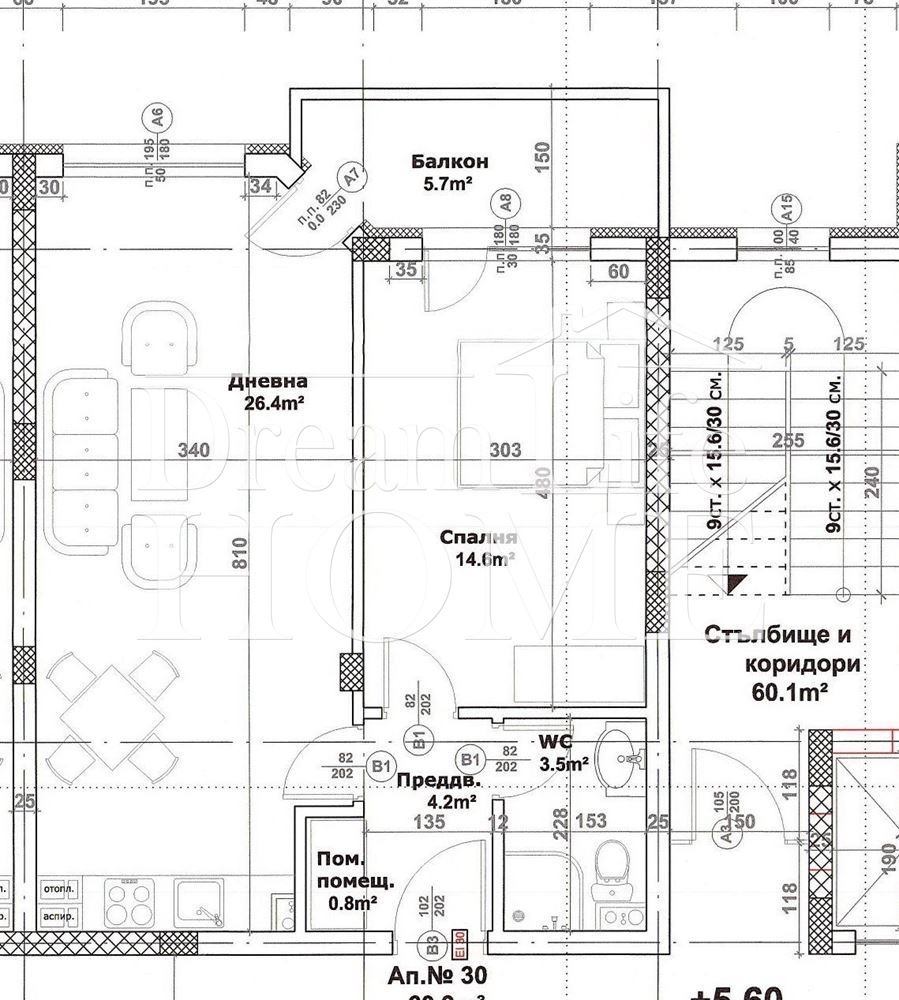
Разпределението на апартамента е следното: Предверие /коридор/,дневна с кухненски кът с място за хранене/ 26 кв.м./, спалня / 15 кв.м./ , баня с тоалетна,излаз на обща тераса от дневната и спалнята. Общата площ на имота е 68 кв.м. на етаж 3 от 4.

Изложение-запад.

Към имота има наземно паркоместо за цена от 15 500 евро. Сградата очаква да има акт 16 края на 2025г.

Оферта 597.
Особености
Тухла
За контакт:
0896687801
Агенция:
ДРИЙМ ХАУС ИМОТИ
0896687801
В imot.bg от 2023 г.
dream_house1608.imot.bg
Адрес:
област Пловдив, гр. Пловдив, ж.к. Тракия бл. 153
ИЗПРАТИ ЗАПИТВАНЕ
ИЗПРАТИ ЗАПИТВАНЕТО

Продава 2-СТАЕН
град Пловдив, Остромила
Обява: 1b175136382923482

126 100 €
246 630.16 лв.
(1 854 €, 3 626.11 лв./m2)

Цената е с включено ДДС
ЗАПАЗИ ОБЯВАТА

Местоположение: град Пловдив, Остромила

Допълнителни данни за имотите в района и сравнение с други райони

Покажи

Период

и 1 месец

* Средните цени са определени чрез медианна стойност